Ton als Bindeglied zur Bestands­architektur

Neubau mit 90 Wohnungen orientiert sich am angrenzenden Klinkerbestand

Vier Mehrfamilienhäuser mit insgesamt 90 Wohneinheiten entstanden an der Rembrandtstraße in Pforzheim. Das Freiburger Architekturbüro Sacker setzte bei der Fassadengestaltung auf eine vorgehängte hinterlüftete Konstruktion mit Keramikelementen. Die Planung zielte auf vielfältige Grundrisse, naturnahe Freiflächen und einen wartungsarmen Gebäudebestand.
Die Fassade aus natürlichen Tonality-Keramikelementen spiegelt den naturnahen Ansatz des gesamten Projektes wider und ist ein kreislauffähiges Naturprodukt. © Dietmar Strauß
Die Fassade aus natürlichen Tonality-Keramikelementen spiegelt den naturnahen Ansatz des gesamten Projektes wider und ist ein kreislauffähiges Naturprodukt. © Dietmar Strauß

Die Wohnanlage umfasst Einheiten von zwei bis fünf Zimmern. Zwei-Zimmer-Wohnungen erreichen bis zu 58 Quadratmeter, größere Einheiten bieten Platz für Familien. Diese Mischung verschiedener Wohnungstypen ermöglicht eine sozial durchmischte Bewohnerschaft aus Senioren, Singles und Familien. Barrierefreiheit und generationenübergreifende Nutzbarkeit bestimmten die Konzeption.

Ausrichtung am Baubestand

Die Planer orientierten die vier kompakten Baukörper an der nördlich angrenzenden Bebauung. Anordnung und Maßstab fügen sich in den vorhandenen Kontext ein. Jede Wohneinheit erhält Besonnung und ermöglicht Blickbeziehungen zur Pforzheimer Innenstadt. Das innenliegende Treppenhaus erschließt jeweils bis zu sechs Wohnungen. Blickbeziehungen über die Geschosse fördern nachbarschaftliche Kontakte und erzeugen großzügige Raumwirkung. Die Wohn-Ess-Bereiche liegen an den Gebäudeecken. Eine Loggia gliedert den Innenraum und schafft diagonale Blickachsen nach außen. Die großen Bäder befinden sich an der Fassade.

Außeneckkonstruktion in monolithischer Ansichtstiefe. © Leipfinger-Bader
Außeneckkonstruktion in monolithischer Ansichtstiefe. © Leipfinger-Bader

Grünräume zwischen den Gebäuden

Die Freiflächengestaltung greift das Thema der angrenzenden Streuobstwiesen auf. Zwischen den Gebäuden entstanden naturnahe Freiräume. Jeder Zwischenraum erhielt durch verschiedene Bäume und Pflanzen einen eigenen Charakter. Der mittlere Hof fungiert als Quartiersplatz und bietet Spielmöglichkeiten für Kinder. Niedrige Mauern grenzen die privaten Freibereiche ab und bilden einen Kontrast zur umliegenden Landschaft.

Profilierte Keramikelemente

Die Fassadengestaltung orientiert sich an der naturnahen Umgebung und den Klinkerfassaden des angrenzenden Bestands. Die vorgehängte hinterlüftete Tonality-Fassade von Leipfinger-Bader besteht im sichtbaren Bereich aus Keramikelementen mit Reliefoberfläche, einzelne Abschnitte weisen zusätzliche Rillung auf. Die Elemente wurden eigens für dieses Projekt in den Breiten 340, 370 und 400 Millimeter und mit Längen bis zu 1.600 Millimeter angefertigt. Die Profilierung gliedert die Fassade und verleiht ihr Lebendigkeit. Die Farbgebung „Creme hell“ wirkt hell und zurückhaltend.

Die hohen Temperaturen beim Brennvorgang erzeugen langlebige Keramikelemente. Sie weisen UV-Beständigkeit, hohe Kratz- und Stoßfestigkeit sowie dauerhafte Farbechtheit auf. Der Graffitischutz entsteht durch den Produktionsprozess und erfordert keine Erneuerung. Die Keramik nimmt wenig Wasser auf, wodurch sich die Verschmutzung durch Moos und Algen reduziert. Im Vergleich zu mehrschichtigen und verklebten Fassadensystemen lässt sich die Tonality-Keramik sortenrein rückbauen und in gleicher Funktion wiederverwenden. Die Keramikelemente erfüllen die Baustoffklasse A1 nach EN 13501-1 als nicht brennbarer Baustoff.

Vier Mehrfamilienhäuser bilden die neue Wohnbebauung an der Rembrandtstraße in Pforzheim. © Dietmar Strauß
Vier Mehrfamilienhäuser bilden die neue Wohnbebauung an der Rembrandtstraße in Pforzheim. © Dietmar Strauß

Vertikale Montage erzeugt Schattenspiel

Eine Unterkonstruktion trägt die Keramikfassade im nicht sichtbaren Bereich. Sie erweist sich als flexibel und stabil bei geringem Eigengewicht, das aus den einschalig produzierten Keramikelementen resultiert. In Pforzheim montierten die Ausführenden die Elemente vertikal auf der Unterkonstruktion und drehten sie bei der Montage zum Teil um 180 Grad. Diese Anordnung erzeugt eine lebendige Fassadengestaltung, die durch das Schattenspiel der Profilierung zusätzliche Wirkung erhält. Das geringe Eigen- und Fremdgewicht reduziert die erforderliche Anzahl von Wandankern. Dies verringert Wärmebrücken an der Gebäudedämmung und spart Material sowie Arbeitszeit. Die Keramikelemente lassen sich einfach in die Unterkonstruktion einhängen.

Konstruktive Trennung der Funktionen

Die vorgehängte hinterlüftete Fassade trennt die Funktionen Wärmeschutz und Witterungsschutz konstruktiv. Die Luft zirkuliert zwischen Fassadenbekleidung und Dämmung automatisch und führt vorhandene Feuchtigkeit ab. Der Hinterlüftungsspalt gewährleistet dauerhafte Trockenhaltung der Fassade und schafft ein gesundes Raumklima.

Bautafel

Bauvorhaben: Neubau von vier Wohnhäusern an der Rembrandtstraße in Pforzheim
Bauherr: ARGE Pforzheimer Wohnungsunternehmen Postwiesen-/Rembrandtstraße GbR, Familienheim Pforzheim Baugenossenschaft eG und Pforzheimer Bau und Grund GmbH
Architektur: Sacker Architekten GmbH, Freiburg
Fassadenbauer: Wittenauer GmbH, Sasbach
Fassadenkeramik: Tonality GmbH, Weroth

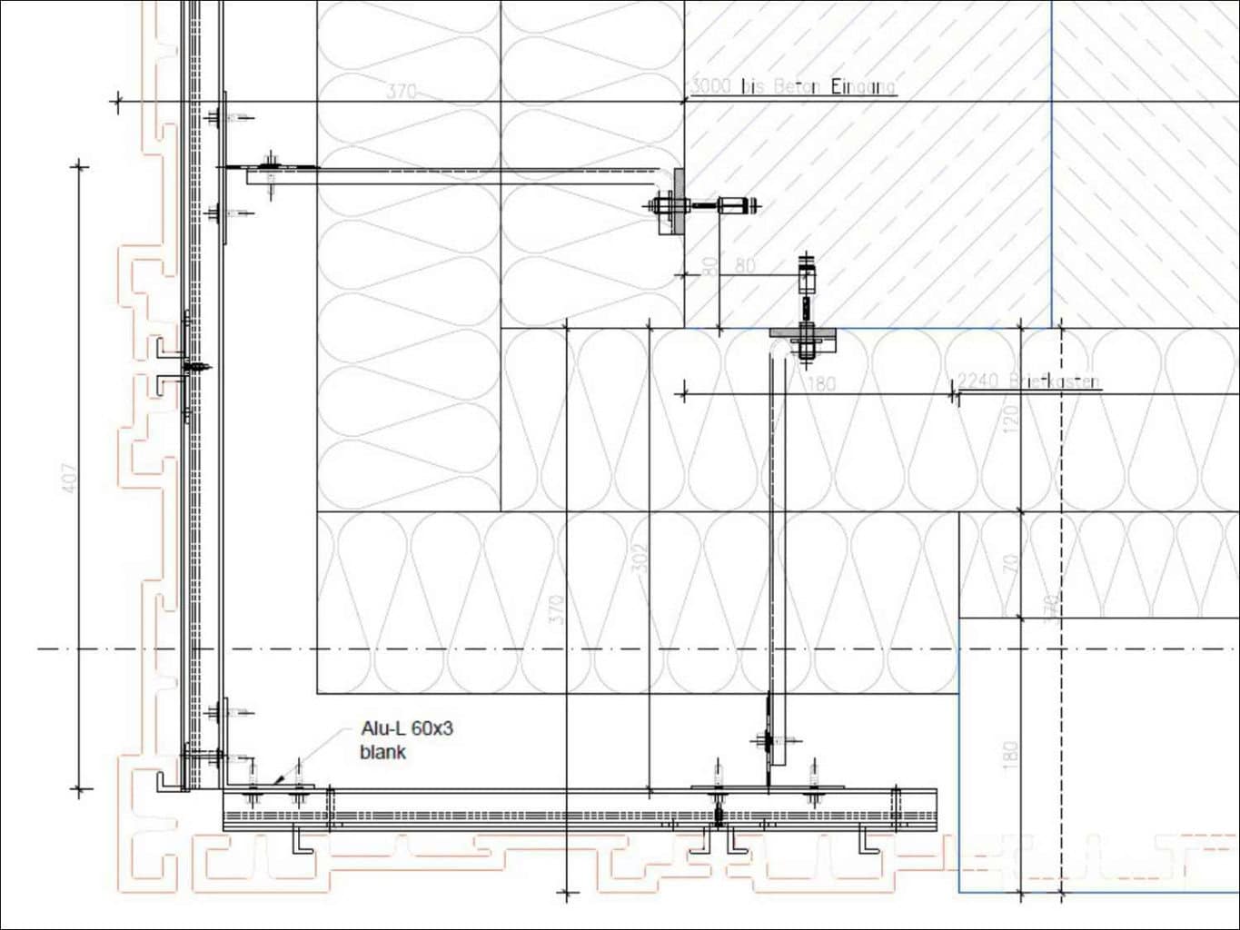
Außenecke mit offener Fuge

Vorgehängte hinterlüftete Keramikfassaden eröffnen bei der Ausprägung von Fensterlaibungen und Außenecken verschiedene Gestaltungsmöglichkeiten. Außenecklösungen mit offenen Fugen schaffen ein präzises, geometrisches Erscheinungsbild, das die Fassadenoberfläche in klar definierte Raster unterteilt. Die Fugen erzeugen einen Kontrast zwischen der Keramikoberfläche und den Schattenlinien der Fuge. Dieser Effekt verleiht der Fassade Tiefe und Dynamik, besonders bei wechselnden Lichtverhältnissen. Die technisch einwandfreie Funktionalität der Außenecke erfordert sorgfältige Detailplanung. (mb)

www.leipfinger-bader.de

Quelle: Trimble

NEWSLETTER

Nach Anmeldung versorgt Sie der Newsletter kostenfrei 14-tägig mit einer redaktionellen Auswahl aktueller Nachrichten und Berichten des Deutschen Ingenieurblatts.

Ihre E-Mail-Adresse wird ausschließlich zur Versendung des Newsletters verwendet und nicht an Dritte weitergegeben. Sie können sich jederzeit per Abmeldelink im Newsletter abmelden (Datenschutzerklärung des Dienstleisters CleverReach).

Ihre E-Mail-Adresse:

Als Ingenieurkammer-Mitglied bitte nicht anmelden – Sie erhalten bereits exklusiv unseren umfassenderen „Mitglieder-Infoservice“ bzw. können diesen über Ihre Kammer bestellen.

BAUPLANER NEWS

Bleiben Sie auf dem Laufenden mit dem Bauplaner-Newsletter, unserem 14-tägigen E-Mail-Service, der Bauingenieure und Planer über die neuesten Entwicklungen in der Branche informiert. 

Ihre E-Mail-Adresse wird ausschließlich zur Versendung des Bauplaner-Newsletters verwendet und nicht an Dritte weitergegeben. Sie können sich jederzeit per Abmeldelink im Bauplaner-Newsletter abmelden (Datenschutzerklärung des Dienstleisters CleverReach).

Ihre E-Mail-Adresse:

NEUE BEITRÄGE

Anzeige: Lesen Sie jetzt das neue ✶ ALLPLAN Whitepaper ✶